Objektart
Adresse
Objektdaten
Informationen
Ausstattung
Details
Das Reihenmittelhaus mit umschlossenem Garten befindet sich in ruhiger Wohnlage mit ansprechender Nachbarbebauung auf einem Erbpachtgrundstück. Der monatliche Erbpachtzins beträgt ca. 140 EUR.
Nach Rücksprache mit dem Erbpachtgeber besteht die Möglichkeit, das Grundstück zu einem Kaufpreis von 45.000 EUR zu erwerben.
Ihr neues Zuhause
Das Haus präsentiert sich im typischen Erhaltungszustand des Baujahres und bietet Ihnen damit die Möglichkeit, es nach Ihren eigenen Vorstellungen zu modernisieren und individuell zu gestalten.
Der durchdachte Grundriss überzeugt mit funktionaler Raumaufteilung:
Erdgeschoss: Gäste WC, Küchenraum sowie ein großzügiges Wohn Esszimmer mit direktem Zugang zur Terrasse und in den gemütlichen Garten.
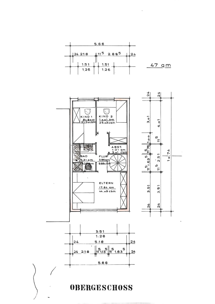
Obergeschoss: Drei Schlafräume, eine Abstellkammer sowie ein innenliegendes Badezimmer.
Keller: Vollunterkellerung mit reichlich Stauraum sowie Platz für Hauswirtschaft oder Hobby. Der Keller ist sowohl über eine Treppe im Haus als auch über einen praktischen Außenzugang vom Garten erreichbar. Zusätzlich wurde die Terrasse nachträglich unterkellert. Hier steht Ihnen weiterer, gut nutzbarer Raum zur Verfügung, ideal zum Beispiel als Werk oder Lagerkeller. Der Keller unter der Terrasse ist ebenfalls von außen erreichbar. Geheizt wird über eine neuere Gasheizung (Baujahr 2023).
Ein Gemeinschaftsweg führt vom Garten aus nach draußen, sodass Gartenabfälle oder sperrige Gegenstände bequem entsorgt werden können, ganz ohne den Weg durchs Haus.
Abgerundet wird das Angebot durch eine Garage mit elektrischem Torantrieb und Stromanschluss. Ein separater Stromzähler zur Abrechnung ist vorhanden.
Dieses Haus kombiniert ruhiges Wohnen mit solider Bausubstanz, bietet Modernisierungspotenzial und ermöglicht dank Erbpacht zusätzlichen finanziellen Spielraum für Ihre individuellen Wohnträume.
Das Haus befindet sich in Herne-Horsthausen, einer ruhigen und gefragten Wohnlage im nördlichen Stadtgebiet von Herne. Besonders attraktiv ist die direkte Nähe zum Rhein-Herne-Kanal, der mit seinen Uferwegen zum Spazierengehen, Radfahren und Verweilen einlädt.
Die Nachbarschaft ist geprägt von einer Mischung aus gepflegten Einfamilienhäusern und Mehrfamilienhäusern, was für eine ausgewogene und lebendige Wohnatmosphäre sorgt. Einkaufsmöglichkeiten für den täglichen Bedarf, Schulen, Kindergärten und ärztliche Versorgung befinden sich in unmittelbarer Umgebung und sind schnell erreichbar.
Die Verkehrsanbindung ist hervorragend: Über die nahegelegenen Anschlussstellen der A42 und A43 erreichen Sie bequem die umliegenden Städte des Ruhrgebiets wie Gelsenkirchen, Bochum oder Dortmund. Der öffentliche Nahverkehr ist gut ausgebaut und ermöglicht kurze Wege in die Herner Innenstadt.
Durch die Kombination aus naturnaher Lage am Kanal und der schnellen Erreichbarkeit städtischer Infrastruktur bietet dieser Standort eine attraktive Mischung für alle, die zentrumsnah und dennoch im Grünen wohnen möchten.
WICHTIGER HINWEIS:
Bitte beachten Sie, dass alle Anfragen automatisch und rund um die Uhr - 24 Stunden täglich, 7 Tage die Woche - in der Regel innerhalb weniger Minuten mit der Angabe der Objektadresse beantwortet werden. Bitte prüfen Sie daher auch Ihren Spam- oder Junk-Ordner, falls Sie keine Antwort in Ihrem Posteingang finden. Sollten Sie darüber hinaus weitere Fragen haben, senden Sie uns bitte eine separate E-Mail an info@leusenrink.de oder rufen Sie uns unter 02323 38 00 10 an, da nicht jede Anfrage manuell eingesehen wird.
Provision:
Der Käufer zahlt im Erfolgsfall eine Käufercourtage in Höhe von 3% zuzüglich der gesetzlichen Mehrwertsteuer von 19%, also 3,57% vom beurkundeten Kaufpreis.
Gewährleistungsausschluss:
Alle Angaben erfolgen nach bestem Wissen und Gewissen, basierend auf den Informationen unserer Auftraggeber. Eine Gewähr für die Richtigkeit und Vollständigkeit der Angaben können wir jedoch nicht übernehmen.
Ihre Ansprechpartner:
Frau Barbara Janotta (Vertriebsassistentin
Marcel Leusenrink (Immobilienmakler/Sachverständiger für Immobilienbewertungen)
Wir sind Mitglied im IVD:
Leusenrink-Immobilien ist Mitglied im IVD (Immobilienverband Deutschland).
Verbraucherinformationen:
Ombudsmann Immobilien im IVD/VPB - Informations- und Schlichtungsstelle
c/o Bundesgeschäftsstelle des IVD
Littenstraße 10, 10179 Berlin
www.ombudsmann-immobilien.net
Ansprechpartner
anfragenmanager@leusenrinkimmobilien.de
Sachverständiger (Immobilienbewertungen) / Immobilienmakler
Energieausweis (Bedarfsausweis)
294,10 kWh / (m²*a) Endenergiebedarf
294,10 kWh / (m²*a) Endenergiebedarf
294,10 kWh / (m²*a) Endenergiebedarf
Weitere Informationen
| Wesentlicher Energieträger | GAS |
| Energieausweis gültig bis | 2035-04-21 |
| Energieausweis Jahrgang | ab dem 1.5.2014 |
| Energieausweis Werteklasse | H |
| Energieausweis Baujahr | 1975 |
| Energieausweis Gebäudeart | Wohngebäude |
| Heizung | Zentralheizung |
| Befeuerung | Gas |
Ich bin damit einverstanden, dass mir Karten von Google angezeigt werden. Es gelten die Datenschutzbedingungen von Google (https://policies.google.com/privacy).
Ich bin einverstanden